Structural retrofit and remediation by: Engineering Ministries International Uganda for Congo Initiative
Project location: Beni, Democratic Republic of Congo
Project completion date: 2022
My roles: Architectural Design for remediation and Construction Supervision.
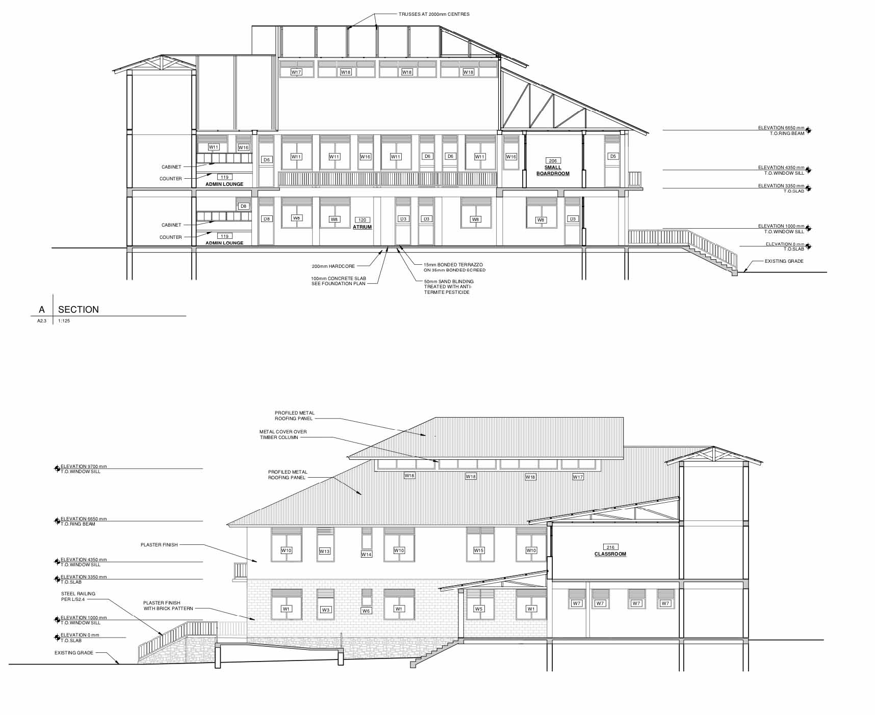
The CI-UCBC main academic building is designed to accommodate a 1200 seat Auditorium, classrooms for 500 students and Offices for the Christian Bilingual University of Congo (UCBC).













