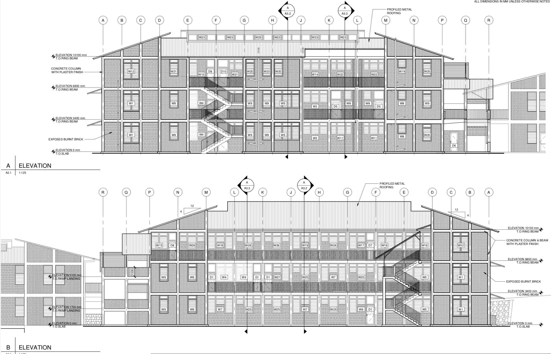
Designed by: Engineering Ministries International Uganda for Kibuye Hope Hospital
Project location: Kibuye, Burundi
Project status: Completed in December 2020
My roles: Architect Assistant, Architectural drawings, Construction Manager








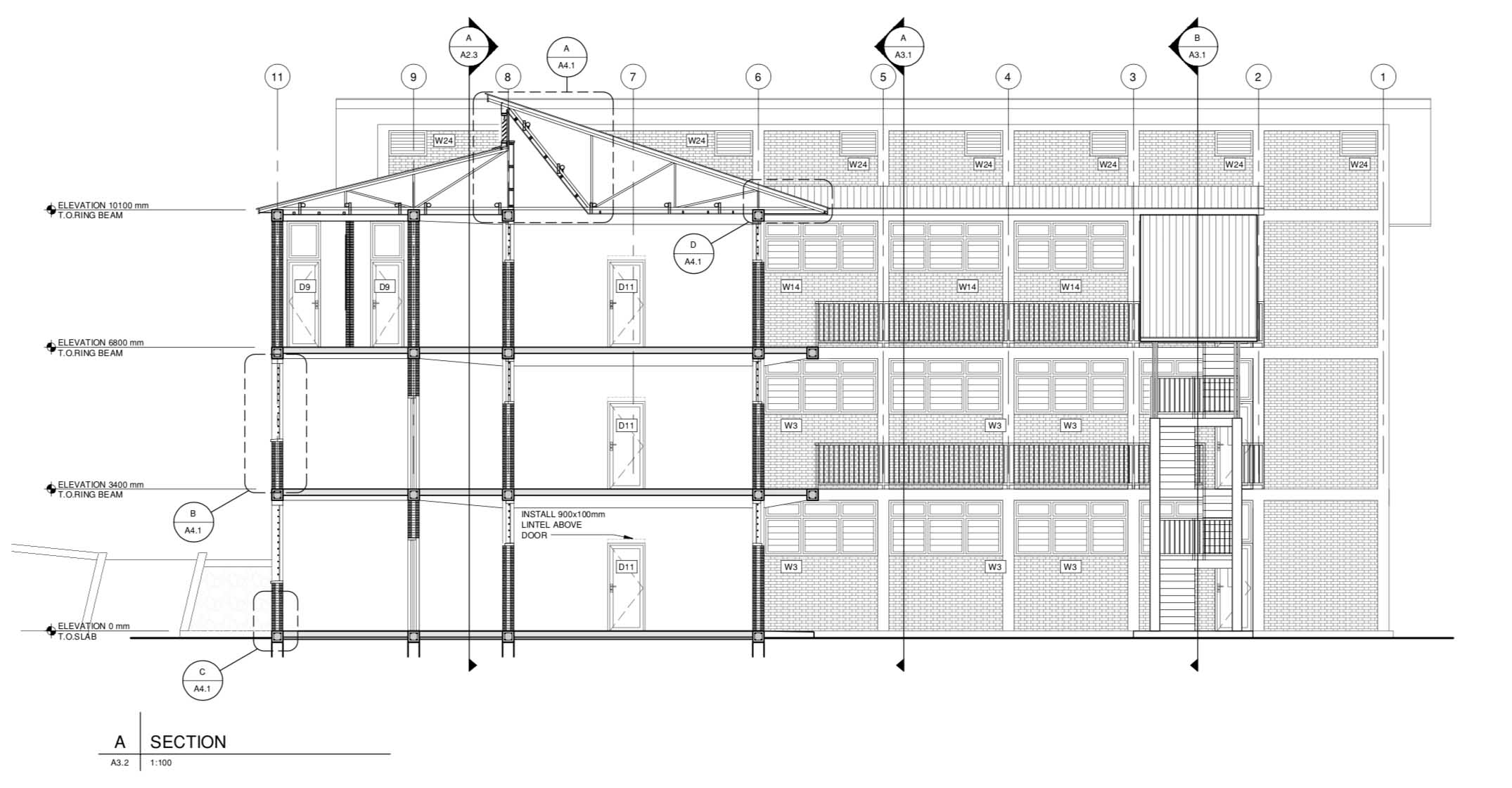
Designed by: Engineering Ministries International Uganda for Kibuye Hope Hospital
Project location: Kibuye, Burundi
Project status: Completed in December 2020
My roles: Architect Assistant, Architectural drawings, Construction Manager






